臥式容器與換熱器管板相連的案例
時間:2020-10-30
來源:壓力容器唯心不易
瀏覽:
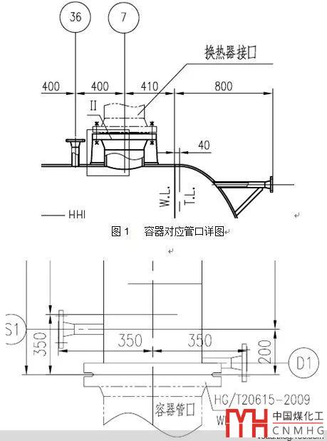
某項目裝置有一臺臥式容器,其上一管口與固定管板式換熱器的管板相連。容器由A公司設計,換熱器由B公司設計。

容器DN300管口設計中,接管采用φ323.9x22.2,壁厚等級Sch100,因此管口法蘭連接面內徑為φ279.5。換熱器管板凸面外徑φ298,凸面內徑φ288。如圖所示,管板與管法蘭連接面有5mm寬連接誤差,管板與管法蘭無法正常安裝。

考慮到換熱器和容器由不同廠家制造并已運到現場,針對以上問題采取以下措施:
1.容器上DN300管口法蘭內徑處用砂輪打磨(不得采用火焰切割方法)倒角8X45°。切割完成后,管口法蘭面與管板之間保留3mm的間隙。
2.管板與管法蘭連接面的墊片采用HG/T20631-2009 標準中B 型(帶內加強環(huán))的纏繞墊片。
修改的管板與管法蘭如下圖:

對于需要分開設計的組裝的設備,其連接界面,裝配問題一定要考慮清楚。在設備中主要是塔和塔內件,反應器和攪拌器,組合式設備,等等。
上一條:厚壁圓筒的應力分布
下一條:雙折邊錐形封頭的鈑金展開
版權:如無特殊注明,文章轉載自網絡,侵權請聯系cnmhg168#163.com刪除!文件均為網友上傳,僅供研究和學習使用,務必24小時內刪除。
相關推薦
熱門信息
-
Origin(Pro):學習版的窗口限制【數據繪圖】 2020-08-07
-
如何卸載Aspen Plus并再重新安裝,這篇文章告訴你! 2020-05-29
-
AutoCAD 保存時出現錯誤:“此圖形中的一個或多個對象無法保存為指定格式”怎么辦? 2020-08-03
-
OriginPro:學習版申請及過期激活方法【數據繪圖】 2020-08-06
-
CAD視口的邊框線看不到也選不中是怎么回事,怎么解決? 2020-06-04
-
教程 | Origin從DSC計算焓和比熱容 2020-08-31
-
如何評價擬合效果-Origin(Pro)數據擬合系列教程【數據繪圖】 2020-08-06
-
Aspen Plus安裝過程中RMS License證書安裝失敗的解決方法,親測有效! 2021-10-15
-
CAD外部參照無法綁定怎么辦? 2020-06-03
-
CAD中如何將布局連帶視口中的內容復制到另一張圖中? 2020-07-03
